
Ulica: | Jeséniova |
---|---|
Obec: | Bratislava-Nové Mesto |
Okres: | Bratislava III |
Kraj: | Bratislavský kraj |
Druh: | Byty |
Typ: | Predaj |
Typ bytu: | 2-izbový byt |
Iné: |
Vážení záujemcovia o nehnuteľnosť,
ARISE realitná kancelária má pre vás výnimočnú ponuku – priestranný 2-izbový byt na Jeséniovej ulici, nachádzajúci sa v tichej a pokojnej lokalite Vinohrady, v mestskej časti Bratislava-Nové Mesto.
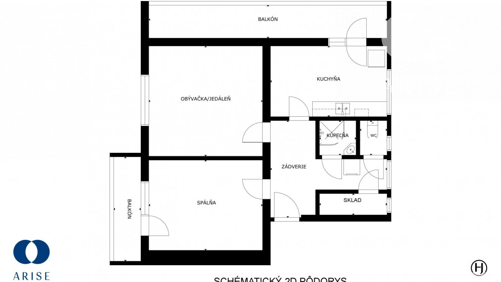
Stav a Dispozícia:
- Byt je v pôvodnom stave s vymenenými oknami a vstupnými dverami.
- Dispozične pozostáva zo vstupnej chodby, dvoch izieb, samostatného WC, kúpeľne a komory.
- Kuchyňa s východom na veľkú loggiu.
Charakteristika Bytu:
- Celková Plocha: 58.69 m2 (bez plochy balkóna a loggie)
- Podlahová Plocha Bytu: 56.97 m2
- Podlahová Plocha Pivnice: 1.72 m2
- Podlahová Plocha Balkóna a Loggie: 11.75 m2
- Poschodie: 2. poschodie bez výťahu
- Orientácia: V, J, Z (tri svetové strany) s výhľadom do parku Gaštanica
Rozmery izieb, kuchyne, chodby, kúpeľne, WC a komory sú:
- Izba č. 1: 13,29 m2
- Izba č. 2: 18,20 m2
- Kuchyňa: 11,84 m2
- Chodba: 9,33 m2
- Kúpeľňa: 2,01 m2
- WC: 0,94 m2
- Sklad: 1,36 m2
Lokalita:
- Jeséniova ulica, Vinohrady, Bratislava-Nové Mesto.
- Tichá lokalita s výbornou dostupnosťou k obchodom, službám a verejnej doprave.
- Blízkosť parku Gaštanica poskytuje pokojné prostredie pre bývanie, príjemné prechádzky a oddych.
- Výborná orientácia poskytuje prirodzené osvetlenie a výhľad do prírody.
Cena:193 000€ vrátane všetkých poplatkov.
Kontakt na Obhliadku a Otázky:
- Martin Balážik
- Tel.: +421 903 549 178 - Email: martin.balazik@arise.sk
V ARISE realitnej kancelárii sme pripravení poskytnúť všetky potrebné informácie a s vami prejsť každý krok procesu kúpy tohto bytu. Ak sa vám ponuka páči a chcete si byt pozrieť osobne, neváhajte nás kontaktovať. Sme tu pre vás a radi vám pomôžeme nájsť váš nový domov.
S úctou,
Vaša ARISE realitná kancelária
Som veselým človekom, ktorý nasleduje svoje túžby. Vždy sa snažím nájsť cestu, ako veci a prípadné problémy vyriešiť. Milujem šport, ktorý je súčasťou celého môjho života. Naučil ma nevzdávať sa a pracovať na svojom rozvoji. Prípadný neúspech, alebo komplikáciu beriem ako výzvu počas, ktorej sa vždy niečo nové naučím.
Práca s ľuďmi je zaujímavá a rozmanitá. Každý nový klient ma obohatí niečím, čo môžem využiť v pracovnom aj v osobnom živote.
Ako hovoril Dalajláma: „Existujú len dva dni v roku, kedy nemôžeme vôbec nič urobiť. Jedným je včerajšok a druhým zajtrajšok. Preto je dnešok tým správnym dňom na to, aby sme milovali, konali a žili.“