Používame cookies

Súbory cookie a ďalšie technológie sledovania používame na zlepšenie vášho zážitku z prehliadania našich webových stránok, na to, aby sme vám zobrazovali prispôsobený obsah a cielené reklamy, na analýzu návštevnosti našich webových stránok a na pochopenie toho, odkiaľ naši návštevníci prichádzajú. Viac info

PREDANÉ! 1 izbový byt v Ružinove- Ostredky

Ulica: Mesačná
Mestská časť: Ostredky
Obec: Bratislava-Ružinov
Okres: Bratislava II
Kraj: Bratislavský kraj
Druh: Byty
Typ: Predaj
Typ bytu: 1-izbový byt
154 321 €

Popis nehnuteľnosti

ARISE realitná kancelária Vám ponúka na predaj kompletne zrekonštruovaný 1 izbový byt v obľúbenej mestskej časti Ružinov - Ostredky.

Ostredky patria medzi najzelenšie sídlisko Ružinova, nájdete tu rozľahlý park, detské ihriská, športoviská a reštaurácie. Zaujímavé na sídlisku je to, že viac ako polovica ľudí tu žije dlhšie ako 15 rokov.

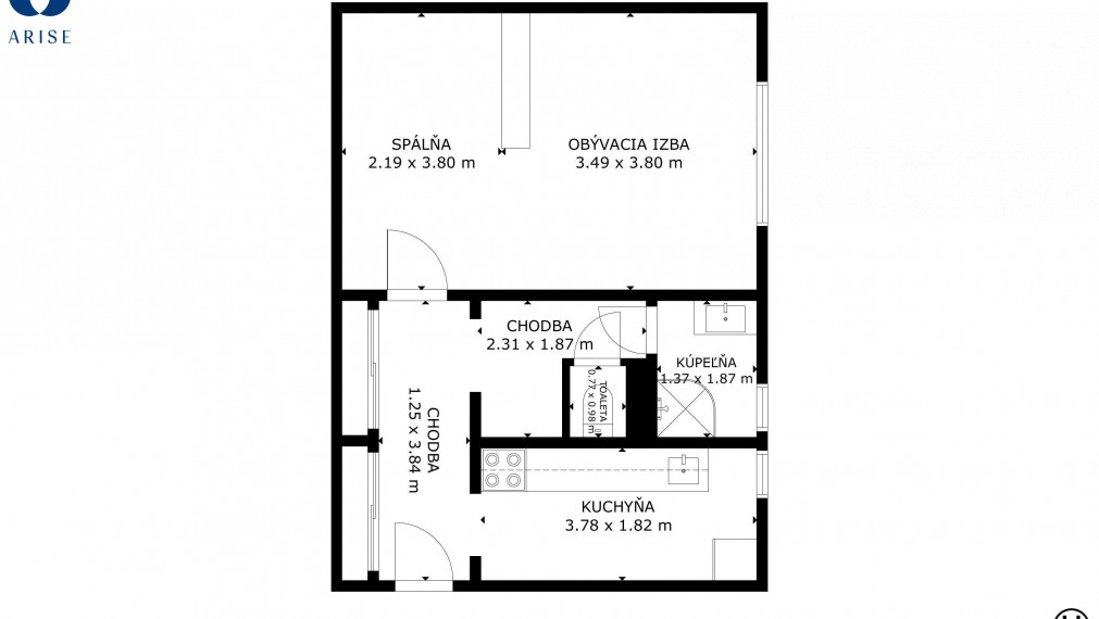
Byt pozostáva zo vstupnej chodby s veľkou rolldor skriňou, priestrannej obývacej miestnosti, ktorá je čiastočne predelená a tým vytvorená spiaca časť. Ďalej kuchyňa, kúpeľňa a samostatná toaleta. Je orientovaný na západnú stranu.

Rozloha bytu je 43 m2 a nachádza sa na 1. vyvýšenom poschodí zo 6. Byt je možné prerobiť aj na 2i.

Náš názor: tento pekný byt je vhodný ako štartovací byt pre mladý pár ale takisto výborný ako investícia na prenájom. Byt ponúka dostatok úložného priestoru a zaujímavú metráž. Samozrejmosťou je aj pivničná kobka.

Predávame ho kompletne zariadený.

Dispozícia:

-             Predsieň s rolldor skriňou – 6,86m2

-             Kuchyňa s linkou a spotrebičmi – 7,03m2

-             Kúpeľňa so sprchovým kútom, oddelená toaleta, chodba – 6,51m2

-             Veľká obývačka s obývacou stenou, gaučom a manželskou posteľou – 21,62m2

-              Pivničná kobka na medziposchodí – 1m2

Bývanie na Ostredkoch je skvelé. Nájdu si tu svoje mladí ľudia, rodiny, ale i seniori. Aj pre silnú komunitu je to jedna z najvyhľadávanejších lokalít v Bratislave. V blízkosti bytu je len 3 minúty obchodné centrum Avion, IKEA a taktiež výborná dostupnosť na diaľnicu. Do centra sa dostanete pohodlne MHD autobusom aj električkou do 15 minút.

Veľkou výhodou pre rodiny s deťmi sú v blízkosti viaceré školy, škôlky a pekné detské ihríská. Taktiež nepochybne veľký park, kde sa môžu deti bezpečne vyšantiť.

Cena tohto krásneho bytu 154 321 € vrátane všetkých poplatkov. V prípade záujmu prosím

Kontakt na Obhliadku a Otázky:

  • Martin Balážik
  • Tel.: +421 903 549 178
  • Email: martin.balazik@arise.sk

Všetky dodatočné informácie pre vás zistím. Som tu, aby som vám pomohol v každom kroku procesu kúpy tohto bytu. Ak sme vás zaujali našou ponukou, neváhajte nás kontaktovať pre viac informácií alebo dohodnutie obhliadky. Potešíme sa, že vám pomôžeme nájsť váš nový domov.

Vlastnosti

Status:
aktívne
Vlastníctvo:
osobné
Úžitková plocha:
43 m2
Zastavaná plocha:
43 m2
Stav:
úplne prerobený
Počet izieb:
1
Energetický certifikát:
A
Energetická náročnosť budovy:
Energetický ekonomický
Typ budovy:
panelová stavba
Typ výbavy:
kompletne vybavený
Pivnica:
áno
Verejné vonkajšie parkovanie:
áno
Výťah:
áno
Rok výstavby:
1965
Rok poslednej rekonštrukcie:
2018
Počet poschodí od prízemia vyššie:
6
Pozícia:
vyvýšené prízemie
Celková plocha:
43 m2
Pivnica plocha:
1 m2
Počet pivníc:
1
Vykurovanie - centrálne:
áno
Internet:
áno
Káblová TV:
áno

Informatívna úverová kalkulačka

Pozrieť na mape

Maklér

Mgr. Martin Balážik

Mgr. Martin Balážik

realitný maklér

0903 549 178
martin.balazik@arise.sk

  • rusr

Som veselým človekom, ktorý nasleduje svoje túžby. Vždy sa snažím nájsť cestu, ako veci a prípadné problémy vyriešiť. Milujem šport, ktorý je súčasťou celého môjho života. Naučil ma nevzdávať sa a pracovať na svojom rozvoji. Prípadný neúspech, alebo komplikáciu beriem ako výzvu počas, ktorej sa vždy niečo nové naučím.

Práca s ľuďmi je zaujímavá a rozmanitá. Každý nový klient ma obohatí niečím, čo môžem využiť v pracovnom aj v osobnom živote.

Ako hovoril Dalajláma: „Existujú len dva dni v roku, kedy nemôžeme vôbec nič urobiť. Jedným je včerajšok a druhým zajtrajšok. Preto je dnešok tým správnym dňom na to, aby sme milovali, konali a žili.“

Radi Vám poradíme

Podobné nehnuteľnosti